







Description
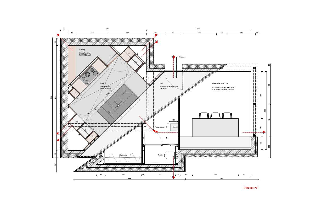
De opdrachtgever is een hobbykok die graag mensen ontvangt en ervoor kookt. Het gebouw is gelegen in een stadstuin. Het ontwerp is geïnspireerd op het schilderij van Jan Burssens. Een contrastrijk kunstwerk opgebouwd uit scherpe vlakken en diagonale lijnen. In de ruimte ontstaat een lijnenspel door diagonalen die gekoppeld zijn aan de hoeken van het gebouw. De ruimte is opgedeeld in 3 vlakken: één vlak is het eetgedeelte, een witte ruimte gecombineerd met aluminium. Deze ruimte staat in contrast met het kookgedeelte dat bestaat uit zwarte elementen en cortenstaal.
In het neutrale gedeelte komt de geborgenheid terug vanuit het schilderij. Dit is de gang die vanuit een lijnenperspectief smal inloopt naar een raam. Deze ruimte sluit het eetgedeelte af met schuifwanden en de keuken is verwerkt in een grote nis.